Logo Bundesministerium der Justiz und für VerbraucherschutzLogo Bundesamt für Justiz

Bekanntmachung der Strompolizeiverordnung zum Schutz bundeseigener Betriebsanlagen an Bundeswasserstraßen (Wasserstraßen-Betriebsanlagenverordnung - WaStrBAV)

Nichtamtliches Inhaltsverzeichnis

WaStrBAV

Ausfertigungsdatum: 06.06.2016

Vollzitat:

"Wasserstraßen-Betriebsanlagenverordnung vom 6. Juni 2016 (VkBl. 2016, 435), die durch Artikel 1 der Verordnung vom 2. September 2019 (VkBl. 2019) geändert worden ist"

Stand:Geändert durch Art. 1 V v. 2.9.2019 VkBl. 627

Näheres zur Standangabe finden Sie im Menü unter Hinweise

Fußnote

(+++ Textnachweis ab: 1.7.2016 +++)
(+++ Zur Anwendung vgl. § 4 +++)

Die Generaldirektion Wasserstraßen und Schifffahrt verordnet
-
auf Grund des § 27 Absatz 1 des Bundeswasserstraßengesetzes in der Fassung der Bekanntmachung vom 23. Mai 2007 (BGBl. I S. 962; BGBl. 2008 I S. 1980), § 27 Absatz 1 geändert durch Artikel 522 Nummer 2 der Verordnung vom 31. August 2015 (BGBl. S. 1474), in Verbindung mit § 1 der Verordnung über die Übertragung der Ermächtigung zum Erlass von Strompolizeiverordnungen nach dem Bundeswasserstraßengesetz vom 15. April 1969 (BGBl. II S. 853), der durch Artikel 21 der Verordnung vom 02. Juni 2016 geändert worden ist, und
-
auf Grund des § 46 Satz 1 Nummer 3 des Bundeswasserstraßengesetzes in der Fassung der Bekanntmachung vom 23. Mai 2007 (BGBl. I S. 962; BGBl. 2008 I S. 1980), § 46 Satz 1 Nummer 3 geändert durch Artikel 522 Nummer 7 der Verordnung vom 31. August 2015 (BGBl. S. 1474), in Verbindung mit § 1 der Verordnung zur Übertragung der Ermächtigung zum Erlass von Rechtsverordnungen nach dem Bundeswasserstraßengesetz über die Regelung, Beschränkung oder Untersagung des Gemeingebrauchs vom 21. September 1971 (BGBl. I S. 1617), der zuletzt durch Artikel 24 der Verordnung vom 02. Juni 2016 geändert worden ist:
Nichtamtliches Inhaltsverzeichnis

§ 1 Geltungsbereich

(1) Die Verordnung gilt vorbehaltlich des Absatzes 2 für alle Bundeswasserstraßen.
(2) Die Verordnung gilt nicht
1.
auf den auf die Freie und Hansestadt Hamburg delegierten Stromstrecken der Elbe zwischen Oortkaten (Ortkathen) und Tinsdahl (gesamte Stromstrecke von km 607,5 bei Oortkaten bis km 633,35 bei Finkenwerder einschließlich Süderelbe und Köhlbrand von km 610,06 bis 625,68, Hauptstrom von km 633,35 bei Finkenwerder bis km 638,978 bei Tinsdahl),
2.
in den Schleusenbereichen der Schleusen Brunsbüttel, Kiel-Holtenau (Nord-Ostsee-Kanal), Strohbrück (Achterwehrer Schifffahrtskanal), Gieselau (Gieselau-Kanal), Lexfähr, Nordfeld und Eider-Sperrwerk (Eider),
3.
auf den Randdünen auf der Insel Wangerooge und
4.
auf den Strandschutzwerken auf der Insel Borkum im Sinne des § 1 der Strandschutzwerk-Sicherungsverordnung Borkum.
Nichtamtliches Inhaltsverzeichnis

§ 2 Benutzungsverbot

(1) Es ist verboten
1.
die bundeseigenen Schifffahrts- und Betriebsanlagen, insbesondere Schleusen, Schiffshebewerke, Wehre, Schutzhäfen, Bauhäfen, Bauhöfe, Schirrhöfe, Schiffhöfe sowie Werkstätten, Pegelanlagen, Sicherheitstore, Sperrwerke, Dämme, Buhnen und Parallelwerke außerhalb ihrer Zweckbestimmung, insbesondere durch Betreten, Befahren, Abstellen von Fahrzeugen aller Art, Zelten, Viehtreiben, Reiten oder durch Umgang mit Feuer;
2.
bundeseigene Ufergrundstücke und Betriebswege außerhalb ihrer Zweckbestimmung, insbesondere durch Befahren mit Kraftfahrzeugen einschließlich Krafträdern, Kleinkrafträdern und Mobilitätshilfen, durch Abstellen von Fahrzeugen aller Art, Zelten, Viehtreiben, Reiten oder durch Entzünden von Feuer
zu benutzen (Benutzungsverbot). Ausgenommen von dem Benutzungsverbot sind das Betreten der bundeseigenen Ufergrundstücke und Betriebswege durch Fußgänger und das Befahren der Betriebswege mit Fahrrädern. Handlungen im Sinne des Satzes 2 geschehen jeweils auf eigene Gefahr.
(2) Soweit der für die Schifffahrt erforderliche Zustand der Bundeswasserstraße gefährdet wird, kann abweichend von Absatz 1 Satz 2
1.
Fußgängern das Betreten bestimmter bundeseigener Ufergrundstücke oder Betriebswege sowie
2.
Radfahrern das Befahren bestimmter bundeseigener Ufergrundstücke oder Betriebswege
verboten werden.
(3) Das Benutzungsverbot nach Absatz 1 Satz 1 kann durch ein Schild nach dem Muster 1 der Anlage kenntlich gemacht werden. Erfolgt eine Kenntlichmachung nach Satz 1, ist unter dem Schild nach dem Muster 1 der Anlage ein weiteres Schild nach dem Muster 2 der Anlage mit der Aufschrift „Ufergrundstücke und Betriebswege frei für Fußgänger und Radfahrer auf eigene Gefahr“ anzubringen, soweit nicht Absatz 2 anzuwenden ist. Im Falle des Absatzes 2 Nummer 1 ist unter dem Schild nach dem Muster 1 der Anlage das Schild nach dem Muster 2 der Anlage mit der Aufschrift „Betriebswege frei für Radfahrer auf eigene Gefahr“ anzubringen. Im Falle des Absatzes 2 Nummer 2 ist unter dem Schild nach dem Muster 1 der Anlage das Schild nach dem Muster 2 der Anlage mit der Aufschrift „Ufergrundstücke und Betriebswege frei für Fußgänger auf eigene Gefahr“ anzubringen.
(4) Die Fahrgeschwindigkeit auf den Betriebswegen ist den Wegeverhältnissen anzupassen.

Fußnote

(+++ § 2 Abs. 4: zur Anwendung vgl. § 4 Satz 2 +++)
(1) Ausnahmen von den Verboten nach § 2 Absatz 1 und § 2 Absatz 2 können
1.
durch Einzelgenehmigung und
2.
durch allgemeine Genehmigung für bestimmte Personengruppen oder bestimmte Benutzungsarten
zugelassen werden.
(2) Eine Einzelgenehmigung wird dem Antragsteller unter dem Vorbehalt des Widerrufs schriftlich erteilt. Die Genehmigung kann mit Nebenbestimmungen versehen werden. Der Inhaber der Genehmigung hat den Genehmigungsbescheid mitzuführen und auf Verlangen den mit strompolizeilichen Vollzugsaufgaben beauftragten Bediensteten der Wasserstraßen- und Schifffahrtsverwaltung des Bundes zwecks Überprüfung auszuhändigen.
(3) In dringenden Fällen kann die Einzelgenehmigung mündlich erteilt werden.
(4) Eine allgemeine Genehmigung wird durch das Aufstellen des Schildes nach dem Muster 3 der Anlage mit der im Einzelfall erforderlichen Aufschrift erteilt. Die allgemeine Genehmigung kann mit Nebenbestimmungen versehen werden. Das Schild wird unter dem Schild nach dem Muster 1 der Anlage oder unter dem Schild nach dem Muster 2 der Anlage angebracht. Ist das Aufstellen von Schildern untunlich, so kann für bestimmte Personengruppen die allgemeine Genehmigung öffentlich, sowie nachrichtlich im Internet, bekannt gemacht werden.
Von den Benutzungsverboten nach § 2 Absatz 1 oder den besonderen Betretens- und Befahrensverboten nach § 2 Absatz 2 sind die Bediensteten oder Beauftragten der Wasserstraßen- und Schifffahrtsverwaltung des Bundes, anderer Behörden, der Einrichtungen des Rettungs- und des Feuerwehrdienstes sowie sonstiger Hilfsorganisationen befreit, soweit das Benutzen zur Erfüllung der dienstlichen Aufgaben erforderlich ist. § 2 Absatz 4 gilt entsprechend.
Nichtamtliches Inhaltsverzeichnis

§ 5 Zerstörungs- und Beschädigungsverbot

(1) Es ist verboten,
1.
bundeseigene Schifffahrts- und Betriebsanlagen einschließlich der Kabel, Leitungen, Schifffahrtszeichen, Liegestellen, Lagepunkte, Höhenfestpunkte, Vermessungspunkte, Kabelmarkierungszeichen oder sonstigen Zeichen und Einrichtungen, die zur Abgrenzung, Absperrung, Vermessung oder als Hinweis- oder Verbotsschilder dienen,
2.
Ufergrundstücke, insbesondere Uferbefestigungen, Uferbewuchs oder Anpflanzungen, sowie Betriebswege
unbefugt zu zerstören, zu beschädigen, unbrauchbar zu machen, zu verändern oder zu entfernen.
(2) Im Bereich der Schleusenkammern, auf Schleusenplattformen, Schleusenbrücken und Schleusenstegen sowie an Gefahrgutliegestellen sind das Rauchen und der Umgang mit offenem Feuer oder glühenden Stoffen verboten.
(3) Das Verbot nach Absatz 2 kann durch das Schild nach dem Muster 4 der Anlage kenntlich gemacht werden.
Nichtamtliches Inhaltsverzeichnis

§ 6 Zuständigkeit

Die Wasserstraßen- und Schifffahrtsämter erlassen die Verbote nach § 2 Absatz 2 und erteilen Ausnahmegenehmigungen nach § 3.
Nichtamtliches Inhaltsverzeichnis

§ 7 Ordnungswidrigkeiten

Ordnungswidrig im Sinne des § 50 Absatz 1 Nummer 2 Bundeswasserstraßengesetz handelt, wer vorsätzlich oder fahrlässig
1.
entgegen § 2 Absatz 1 Satz 1 eine Schifffahrts- oder Betriebsanlage, bundeseigene Ufergrundstücke oder Betriebswege benutzt,
2.
einer vollziehbaren Anordnung nach § 2 Absatz 2 zuwiderhandelt,
3.
einer vollziehbaren Auflage nach § 3 Absatz 2 Satz 2 zuwiderhandelt,
4.
entgegen § 3 Absatz 2 Satz 3 den Genehmigungsbescheid nicht mitführt oder nicht oder nicht rechtzeitig aushändigt oder
5.
entgegen § 5 Absatz 2 in einem dort genannten Bereich raucht oder mit offenem Feuer oder mit glühenden Stoffen umgeht.
Nichtamtliches Inhaltsverzeichnis

§ 8 Übergangsbestimmungen

Schilder, die am 30. Juni 2016 aufgestellt sind, gelten neben den nach dieser Verordnung aufgestellten Schildern bis zum 31. Dezember 2021 fort. Im Umfang der sich aus den fortgeltenden Schildern ergebenden Verbote oder Berechtigungen sind
1.
die Strompolizeiverordnung zum Schutz bundeseigener Schifffahrts- und Betriebsanlagen an Bundeswasserstraßen im Bereich der Wasser- und Schifffahrtsdirektionen Nordwest, Mitte, West und Ost vom 4. März 1994 (VkBl. 1994 S. 378),
2.
die Strompolizeiverordnung zum Schutz bundeseigener Schifffahrts- und Betriebsanlagen an Bundeswasserstraßen im Bereich der Wasser- und Schifffahrtsdirektion Ost vom 28. Juni 2010 (VkBl. 2010 S. 283),
3.
die Strompolizeiverordnung zum Schutz bundeseigener Schifffahrts- und Betriebsanlagen an Bundeswasserstraßen im Bereich der Wasser- und Schifffahrtsdirektion Südwest vom 18. Dezember 1990 (VkBl. 1991 S. 135) und
4.
die Strompolizeiverordnung zum Schutz bundeseigener Schifffahrts- und Betriebsanlagen an Bundeswasserstraßen (Betriebsanlagenverordnung, BAVO) im Bereich der Wasser- und Schifffahrtsdirektion Süd vom 15. September 1993 (VkBl. 1993 S. 701)
weiter anzuwenden.
Nichtamtliches Inhaltsverzeichnis

§ 9 Inkrafttreten, Außerkrafttreten

(1) Diese Verordnung tritt am Tage nach der Verkündung in Kraft.
(2) Gleichzeitig treten
1.
die Strompolizeiverordnung zum Schutz bundeseigener Schifffahrts- und Betriebsanlagen an Bundeswasserstraßen im Bereich der Wasser- und Schifffahrtsdirektionen Nordwest, Mitte, West und Ost vom 4. März 1994 (VkBl. 1994 S. 378),
2.
die Strompolizeiverordnung zum Schutz bundeseigener Schifffahrts- und Betriebsanlagen an Bundeswasserstraßen im Bereich der Wasser- und Schifffahrtsdirektion Ost vom 28. Juni 2010 (VkBl. 2010 S. 283),
3.
die Strompolizeiverordnung zum Schutz bundeseigener Schifffahrts- und Betriebsanlagen an Bundeswasserstraßen im Bereich der Wasser- und Schifffahrtsdirektion Südwest vom 18. Dezember 1990 (VkBl. 1991 S. 135) und
4.
die Strompolizeiverordnung zum Schutz bundeseigener Schifffahrts- und Betriebsanlagen an Bundeswasserstraßen (Betriebsanlagenverordnung, BAVO) im Bereich der Wasser- und Schifffahrtsdirektion Süd vom 15. September 1993 (VkBl. 1993 S. 701)
außer Kraft.
Nichtamtliches Inhaltsverzeichnis

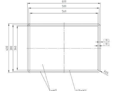
Anlage (zu § 2 Absatz 3, § 3 Absatz 4 und § 5 Absatz 3)
Schilder zur Kennzeichnung der Verbote

(Fundstelle: VkBl. 2016, 437 – 438)