Logo Bundesministerium der Justiz und für VerbraucherschutzLogo Bundesamt für Justiz

Verordnung über die Unterkünfte und Freizeiteinrichtungen der Besatzungsmitglieder an Bord von Kauffahrteischiffen (See-Unterkunftsverordnung - SeeUnterkunftsV)

Nichtamtliches Inhaltsverzeichnis

SeeUnterkunftsV

Ausfertigungsdatum: 17.10.2019

Vollzitat:

"See-Unterkunftsverordnung vom 17. Oktober 2019 (BGBl. I S. 1453)"

Ersetzt V 9513-38-3 v. 25.7.2013 BAnz AT 30.07.2013 V1 (SeeUnterkunftsV)

Näheres zur Standangabe finden Sie im Menü unter Hinweise

Fußnote

(+++ Textnachweis ab: 1.11.2019 +++)
(+++ Zur Anwendung vgl. § 15 Abs. 2 Satz 2 +++)

Das Bundesministerium für Arbeit und Soziales verordnet auf Grund des § 96 des Seearbeitsgesetzes, der durch Artikel 8 Nummer 8 des Gesetzes vom 25. November 2015 (BGBl. I S. 2095) geändert worden ist, im Einvernehmen mit dem Bundesministerium für Verkehr und digitale Infrastruktur, dem Bundesministerium für Gesundheit und dem Bundesministerium für Ernährung und Landwirtschaft:
 
Abschnitt 1
Allgemeine Vorschriften
 
§  1Geltungsbereich
§  2Begriffsbestimmungen
§  3Allgemeine Anforderungen an Unterkünfte und Freizeiteinrichtungen
§  4Bekanntmachung
 
Abschnitt 2
Genehmigungen, Ausnahmen
 
§  5Genehmigung vor Bau, wesentlicher Änderung oder Flaggenwechsel eines Schiffs
§  6Ausnahmen
 
Abschnitt 3
Anforderungen an Bau,
Ausrüstung und Instandhaltung
der Unterkunftsräume und Freizeiteinrichtungen
 
Unterabschnitt 1
Wände, Decken, Fußböden, Isolierung, Schutzvorrichtungen
 
§  7Wände, Decken, Fußböden
§  8Isolierung
§  9Schutzvorrichtungen gegen Ungeziefer
 
Unterabschnitt 2
Beleuchtung, Lüftung, Klimatisierung, Heizung, Leitungen
 
§ 10Beleuchtung
§ 11Luftreinhaltung, raumlufttechnische Anlagen
§ 12Heizungsanlage
§ 13Leitungen
 
Unterabschnitt 3
Lärm und Vibrationen
 
§ 14Verhütung von Lärm und Vibrationen
 
Unterabschnitt 4
Schlafräume, Bodenflächen, Kojen, Ausstattung
 
§ 15Schlafräume
§ 16Bodenflächen
§ 17Kojen und sonstige Schlafraumausstattungen
 
Unterabschnitt 5
Küchen, Vorratsräume, Kühlräume und Messen
 
§ 18Küchen, Vorratsräume und Kühlräume
§ 19Messen, Pantries und Ausstattungen
 
Unterabschnitt 6
Sanitäre Einrichtungen
 
§ 20Anzahl und Anordnung der sanitären Einrichtungen
§ 21Ausstattung und Gestaltung der sanitären Einrichtungen
 
Unterabschnitt 7
Medizinische Räumlichkeiten
 
§ 22Behandlungsraum
§ 23Krankenraum
§ 24Eingriffsraum
 
Unterabschnitt 8
Büroräume
 
§ 25Büroräume
 
Unterabschnitt 9
Sonstige Einrichtungen und Freizeitbereiche
 
§ 26Einrichtungen zur Wäschepflege
§ 27Einrichtungen zur Aufbewahrung von Kleidung und persönlichen Gegenständen, Umkleideeinrichtungen
§ 28Freizeitbereiche und Freizeiträume
 
Abschnitt 4
Ordnungswidrigkeiten
 
§ 29Ordnungswidrigkeiten
 
Abschnitt 5
Übergangs- und Schlussvorschriften
 
§ 30Übergangsvorschriften
§ 31Inkrafttreten, Außerkrafttreten
 
Anlage 1
(zu § 22 Absatz 3)
Apothekenschrank für die Aufbewahrung der medizinischen Ausstattung an Bord
Nichtamtliches Inhaltsverzeichnis

§ 1 Geltungsbereich

Diese Verordnung gilt für die Unterkünfte, die Freizeiteinrichtungen und die medizinischen Räumlichkeiten für Besatzungsmitglieder auf Kauffahrteischiffen, die
1.
die Bundesflagge führen und
2.
nach dem 1. November 2019 auf Kiel gelegt worden sind.
Nichtamtliches Inhaltsverzeichnis

§ 2 Begriffsbestimmungen

(1) Zu den Unterkünften und Freizeiteinrichtungen im Sinne dieser Verordnung gehören
1.
die folgenden Unterkunftsräume:
a)
Schlaf- und Wohnräume,
b)
Messen, Pantries und sonstige Aufenthaltsräume,
c)
Freizeiträume,
d)
Büroräume,
e)
Küchen,
f)
Umkleideräume,
g)
Toiletten und Waschräume einschließlich der Räume und Einrichtungen zum Waschen, Trocknen und Bügeln der Wäsche (sanitäre Einrichtungen),
h)
medizinische Räumlichkeiten,
i)
Gänge in den Bereichen des Schiffs, die der Unterbringung der Besatzungsmitglieder dienen (Verkehrsgänge),
2.
Freizeitbereiche an Deck,
3.
Vorratsräume und Kühlräume,
4.
Einrichtungen zur Trinkwasserversorgung.
(2) Ein Fahrgastschiff ist ein Schiff, das für die Beförderung von mehr als zwölf Fahrgästen zugelassen ist.
(3) Spezialschiffe sind Schiffe im Sinne des IMO-Codes über die Sicherheit von Spezialschiffen (VkBl. 2009 S. 84), die für die Beförderung von mehr als zwölf Personen Spezialpersonal vorgesehen sind.
(4) Fischereifahrzeuge sind Schiffe, die zur gewerblichen Fischerei verwendet werden oder verwendet werden sollen und mit einem durchgehenden wasserdichten Wetterdeck, das bei allen Beladungszuständen oberhalb der Wasserlinie liegt, ausgestattet sind.
(5) Berufsgenossenschaft im Sinne dieser Verordnung ist die Berufsgenossenschaft Verkehrswirtschaft Post-Logistik Telekommunikation.
(6) „Länge“ eines Schiffs ist der größere der beiden folgenden Werte:
1.
96 Prozent der Gesamtlänge, gemessen in einer Wasserlinie in Höhe von 85 Prozent der geringsten Seitenhöhe oberhalb der Oberkante des Kiels, oder
2.
die Länge von der Vorkante des Vorstevens bis zur Drehachse des Ruderschafts in dieser Wasserlinie.
Bei Schiffen mit Kielfall hat die Wasserlinie, in der diese Länge gemessen wird, parallel zur Konstruktionswasserlinie zu verlaufen.
Nichtamtliches Inhaltsverzeichnis

§ 3 Allgemeine Anforderungen an Unterkünfte und Freizeiteinrichtungen

Der Reeder hat dafür zu sorgen, dass die Unterkünfte und Freizeiteinrichtungen
1.
an Bord vorhanden sind und instand gehalten werden,
2.
frei von Gegenständen sind, die nicht persönliches Eigentum der Besatzungsmitglieder sind und nicht der Unterbringung, Freizeitgestaltung, Sicherheit oder Rettung der Besatzungsmitglieder dienen,
3.
dem zum jeweiligen Zeitpunkt der Kiellegung eines Schiffs geltenden Stand der Technik entsprechen, und
4.
für eine menschenwürdige und gesundheitsgerechte Unterbringung oder Verpflegung der Besatzungsmitglieder, soweit dafür vorgesehen, geeignet sind.
Nichtamtliches Inhaltsverzeichnis

§ 4 Bekanntmachung

Auf jedem Schiff ist den Besatzungsmitgliedern der Wortlaut dieser Verordnung in der im Borddienst gebräuchlichen Sprache zugänglich zu machen.
Nichtamtliches Inhaltsverzeichnis

§ 5 Genehmigung vor Bau, wesentlicher Änderung oder Flaggenwechsel eines Schiffs

(1) Wer den Bau eines Schiffs in Auftrag gibt, hat vor Beginn des Baus der Berufsgenossenschaft alle erforderlichen Pläne und Unterlagen der Unterkünfte und Freizeiteinrichtungen vorzulegen und die Zustimmung der Berufsgenossenschaft hierzu einzuholen. Aus den Plänen und Unterlagen müssen erkennbar sein
1.
die vorgesehene Zahl der Besatzungsmitglieder,
2.
das voraussichtliche Fahrtgebiet,
3.
die Lage der Unterkünfte und Freizeiteinrichtungen an Bord,
4.
die vorgesehene Verwendung jeden Raumes an Bord,
5.
die Anordnung der Einrichtungsgegenstände in Wohn- und Schlafräumen,
6.
die Art und Anordnung der Versorgungsanlagen für Belüftung, Beleuchtung, Heizung, Klima und Trinkwasser.
Die Sätze 1 und 2 gelten entsprechend, wenn die Unterkünfte und Freizeiteinrichtungen eines Schiffs wesentlich geändert werden sollen oder wenn ein Schiff von einer ausländischen Flagge zur Bundesflagge wechselt.
(2) Bei der Bauausführung darf von den vorgelegten Plänen nur dann abgewichen werden, wenn die Berufsgenossenschaft der Abweichung zugestimmt hat.
(1) Die Berufsgenossenschaft kann für Schiffe, auf denen die Interessen von Besatzungsmitgliedern mit unterschiedlichen religiösen und sozialen Gebräuchen zu berücksichtigen sind, zur Vermeidung von Diskriminierung Ausnahmen von den Vorschriften dieser Verordnung zulassen, soweit die dadurch entstehenden Verhältnisse im Ganzen nicht ungünstiger sind als die Verhältnisse, die sich aus der Anwendung dieser Verordnung ergeben würden.
(2) Auf Schiffe mit einer Bruttoraumzahl von weniger als 200, die keine Fischereifahrzeuge sind, sind die Anforderungen an die folgenden Ausstattungsmerkmale nicht anzuwenden:
1.
Klimaanlage (§ 11 Absatz 3),
2.
Bodenflächen (§ 16 Absatz 1, 3, 4 und 5),
3.
eigenes Waschbecken (§ 20 Absatz 2),
4.
Einrichtungen zur Wäschepflege (§ 26).
(3) Auf Fischereifahrzeuge mit einer Länge von weniger als 24 Metern sind die Anforderungen an die folgenden Ausstattungsmerkmale nicht anzuwenden:
1.
Klimaanlage (§ 11 Absatz 3),
2.
Zugang zu den Schlafräumen (§ 15 Absatz 5),
3.
Bodenflächen (§ 16 Absatz 1, 5 und 8),
4.
Ausstattung von Messen (§ 19 Absatz 5 Nummer 1 und 2),
5.
Anzahl und Anordnung der sanitären Einrichtungen (§ 20 Absatz 1, 2 und 4),
6.
Büroräume (§ 25),
7.
Vorrichtungen zum Bügeln (§ 26 Absatz 1 Nummer 3),
8.
Aufbewahrung von Koffern und sperrigen Gegenständen (§ 27 Absatz 2),
9.
Freizeitbereiche und Freizeiträume (§ 28).
Nichtamtliches Inhaltsverzeichnis

§ 7 Wände, Decken, Fußböden

(1) In allen Unterkunftsräumen ist eine angemessene Deckenhöhe einzuhalten. Die lichte Höhe muss in allen Unterkunftsräumen, in denen volle Bewegungsfreiheit erforderlich ist, mindestens 203 Zentimeter betragen. Die Berufsgenossenschaft kann eine geringere Mindestdeckenhöhe zulassen, wenn dadurch die Gesundheit und das Wohlbefinden der Besatzungsmitglieder nicht beeinträchtigt werden.
(2) Außenwände und Wände der folgenden Räume müssen aus Stahl oder einem gleichwertigen Werkstoff hergestellt sein und wasser- und gasdicht sein:
1.
Laderäume,
2.
Maschinenräume,
3.
Vorratsräume,
4.
Kühlräume,
5.
Räume zum Trocknen von Wäsche,
6.
Küchen und
7.
gemeinschaftlich genutzte Toiletten und Waschräume in Richtung der Schlafräume.
Die Innenwände und Decken der Unterkunftsräume, mit Ausnahme der Küchen und Toiletten, müssen verkleidet sein.
(3) Offene Decks über den Unterkunftsräumen sind mit einem Belag aus Holz oder einem gleichwertigen Stoff und, soweit die Unterkunftsräume zum dauernden Aufenthalt von Besatzungsmitgliedern bestimmt sind, auch mit einer Trittschallisolierung zu versehen.
(4) Fußböden, Wände und Decken der Unterkunftsräume dürfen keine scharfen Kanten haben. Sie müssen so beschaffen sein, dass sie leicht gereinigt werden können. Die Fußböden müssen rutschfest und feuchtigkeitsundurchlässig sein. Wasser muss abfließen können. Die Oberfläche der Wände und Decken muss hell und wasserfest beschaffen sein.
(5) Die Übergänge zwischen Fußbodenbelägen aus Verbundwerkstoffen und Wänden müssen so mit Profilen versehen sein, dass Fugen möglichst vermieden werden.
(1) Die Unterkunftsräume müssen gegen Kälte und Hitze, die von außen oder aus Nachbarräumen einwirken, wirksam isoliert sein. Die Isolierung muss zweckmäßig sein und gewährleisten, dass Kondenswasser abfließen kann.
(2) Technische Einrichtungen, die die Temperatur in den Unterkunftsräumen beeinflussen können, müssen isoliert sein.
Nichtamtliches Inhaltsverzeichnis

§ 9 Schutzvorrichtungen gegen Ungeziefer

(1) Unterkunftsräume, Vorratsräume und Kühlräume sind gegen das Eindringen und das Einnisten von Ungeziefer zu schützen.
(2) Auf Schiffen, die in Fahrtgebieten eingesetzt sind oder Häfen anlaufen, in denen Insekten Tropenkrankheiten übertragen können,
1.
ist vor Fenstern, Lüftungsöffnungen und Außentüren ein geeigneter Insektenschutz anzubringen und
2.
sind vor den Luftansaugöffnungen von raumlufttechnischen Anlagen widerstandsfähige Insektenfilter anzubringen.
Bei Klimaanlagen kann auf zusätzlichen Insektenschutz verzichtet werden, wenn sie mit einem Reservemotor ausgestattet sind.
(1) Schlafräume, Wohnräume, Messen und sonstige Aufenthaltsräume müssen durch Tageslicht angemessen erhellt sein; dies gilt nicht auf
1.
Fahrgastschiffen,
2.
Spezialschiffen, sowie
3.
Fischereifahrzeugen mit einer Länge von weniger als 24 Metern,
wenn diese Räume ausnahmsweise unter der Ladelinie untergebracht werden dürfen.
(2) In den Unterkunftsräumen, Vorratsräumen und Kühlräumen müssen elektrische Anlagen vorhanden sein, mit denen die Räume ausreichend beleuchtet werden. In den Unterkunftsräumen müssen Tische und Schreibpulte zum Lesen und Schreiben ausreichend beleuchtet werden können. Jede Koje muss am Kopfende mit einer Lampe versehen sein, die ein zum Lesen ausreichendes Licht abgibt.
(3) Die Unterkunftsräume müssen, wenn nicht zwei voneinander unabhängige Stromquellen vorhanden sind, mit einer elektrischen Notbeleuchtungsanlage versehen sein.
(4) Wenn auf einem Fischereifahrzeug in den Messen, Gängen oder sonstigen Räumen, die als Notausgang verwendet werden, keine Notbeleuchtung vorhanden ist, ist in solchen Räumen eine ständige Nachtbeleuchtung vorzusehen.
Nichtamtliches Inhaltsverzeichnis

§ 11 Luftreinhaltung, raumlufttechnische Anlagen

(1) Unterkunftsräume sind so anzuordnen und auszustatten, dass sie gegen Luftverunreinigung aus anderen Schiffsteilen, insbesondere gegen Maschinenabgase, sowie gegen Abluft aus Tanks, Küchen, medizinischen Räumlichkeiten und sanitären Einrichtungen, geschützt sind.
(2) Unterkunftsräume sind mit raumlufttechnischen Anlagen, insbesondere Klimaanlagen oder mechanischen Lüftungsanlagen, auszustatten. Die raumlufttechnischen Anlagen sind jederzeit betriebsbereit zu halten und bei Aufenthalt von Besatzungsmitgliedern an Bord zu betreiben.
(3) Auf allen Schiffen, mit Ausnahme derer, die Gebiete befahren, in denen dies auf Grund des gemäßigten Klimas nicht erforderlich ist, sind die Unterkunftsräume, die Brücke sowie der Raum, in dem sich der zentrale Maschinenleitstand befindet, mit Klimaanlagen auszurüsten.
(4) Raumlufttechnische Anlagen müssen so beschaffen sein, dass
1.
sie eine im Vergleich zu den Außenluftbedingungen der Gesundheit zuträglichere Luftbeschaffenheit sowie eine ausreichende Lufterneuerung in den Unterkunftsräumen gewährleistet,
2.
sie den Besonderheiten des Schiffsbetriebes auf See Rechnung tragen und keine übermäßigen Geräusche, Vibrationen oder Zugluft verursachen und
3.
sie leicht gesäubert und desinfiziert werden können, um Beeinträchtigungen der Gesundheit und des Wohlbefindens der Besatzungsmitglieder zu verhindern.
(5) Bei einem Ausfall der raumlufttechnischen Anlage müssen die Unterkunftsräume zusätzlich auf andere Weise belüftet werden können.
(6) Durch Reinigung und Wartung der raumlufttechnischen Anlagen hat der Reeder sicherzustellen, dass gesundheitliche Beeinträchtigungen der Besatzungsmitglieder durch diese Anlagen vermieden werden.
Nichtamtliches Inhaltsverzeichnis

§ 12 Heizungsanlage

(1) Die Unterkunftsräume müssen mit einer Heizungsanlage ausgestattet sein, die eine der Gesundheit zuträgliche Temperatur unter den Wetter- und Klimabedingungen, denen das Schiff auf der Fahrt ausgesetzt sein wird, gewährleistet; davon ausgenommen sind Schiffe, die ausschließlich in den Tropen verkehren. Die Heizungsanlage ist in Betrieb zu halten, wenn sich Besatzungsmitglieder an Bord aufhalten und die Witterung es erfordert.
(2) Die Wärmeversorgung innerhalb der Unterkunftsräume darf nur mit Warmwasser, Warmluft oder Elektrizität erfolgen.
(3) Heizkörper und sonstige Heizgeräte müssen so aufgestellt und abgeschirmt sein, dass die Gefahr eines Brandes oder eine Gefährdung oder Belästigung der Besatzungsmitglieder vermieden werden.
Leitungen mit gesundheitsgefährlichen Gasen oder Flüssigkeiten oder Leitungen, die unter einem so hohen inneren Überdruck stehen, dass sie bei einem Undichtwerden Leben oder Gesundheit der Besatzungsmitglieder gefährden können, dürfen nicht in Unterkunftsräumen, ausgenommen in Küchen, verlegt sein.
Nichtamtliches Inhaltsverzeichnis

§ 14 Verhütung von Lärm und Vibrationen

(1) Unterkunftsräume und Freizeitbereiche an Deck dürfen keinen Lärmbelastungen oder Vibrationen ausgesetzt sein, die der Gesundheit oder dem Wohlbefinden der Besatzungsmitglieder nicht zuträglich sind.
(2) Unterkunftsräume und Freizeitbereiche an Deck sind in möglichst großer Entfernung von dem Maschinenraum, dem Rudermaschinenraum, den Ladewinden, den Heizungsanlagen, den raumlufttechnischen Anlagen und anderen lärmerzeugenden Maschinen und Anlagen anzuordnen.
(3) Bei Bau und Verkleidung der Wände, Decken und Fußböden in den Lärmquellen aufweisenden Räumen sowie von selbstschließenden schalldichten Türen in Maschinenräumen sind Schallabdichtungen und andere geeignete schallschluckende Materialien zu verwenden.
(1) Für die Besatzungsmitglieder sind Schlafräume vorzusehen, wenn die Betriebsumstände eine Übernachtung an Bord erforderlich machen.
(2) Für jedes Besatzungsmitglied ist ein eigener Schlafraum vorzusehen. Abweichend von Satz 1 dürfen Schlafräume, getrennt nach Männern und Frauen,
1.
auf Schiffen mit einer Bruttoraumzahl von weniger als 3 000 und auf Spezialschiffen mit bis zu zwei Besatzungsmitgliedern belegt werden,
2.
auf Fahrgastschiffen mit bis zu vier Besatzungsmitgliedern belegt werden, jedoch nicht mit mehr als zwei Offizieren,
3.
auf Fischereifahrzeugen mit einer Länge von weniger als 24 Metern mit bis zu sechs Besatzungsmitgliedern belegt werden, jedoch, soweit möglich, nicht mit mehr als einem Offizier,
4.
auf Fischereifahrzeugen mit einer Länge von 24 Metern oder mehr mit bis zu vier Besatzungsmitgliedern belegt werden, jedoch nicht mit mehr als einem Offizier,
5.
mit zwei Auszubildenden belegt werden, wenn Auszubildende an Bord ausgebildet werden und die Schlafräume mit einem eigenen Bad und einer eigenen Toilette ausgestattet sind.
Die Regelungen zu den Mindestbodenflächen in § 16 Absatz 4 Nummer 1 gelten entsprechend. Die Berufsgenossenschaft kann im Einzelfall Ausnahmen von den Anforderungen nach Nummer 4 zulassen, wenn auf Grund der Größe, der Art oder des beabsichtigten Einsatzzwecks des Fischereifahrzeuges die Belegung mit nicht mehr als einem Offizier nicht umsetzbar ist. Auf Fischereifahrzeugen ist in jedem Schlafraum die Höchstzahl der Besatzungsmitglieder, die darin untergebracht werden dürfen, an leicht sichtbarer Stelle dauerhaft und leserlich anzugeben.
(3) Schlafräume sind nach Möglichkeit mit eigenem Bad und eigener Toilette auszustatten. § 20 Absatz 5 und 6 bleibt unberührt.
(4) Die Schlafräume sind über der Ladelinie mittschiffs oder achtern anzuordnen. Ist in Einzelfällen eine Anordnung nach Satz 1 auf Grund der Größe, des Schiffstyps oder der beabsichtigten Einsatzart des Schiffs nicht möglich, so können Schlafräume auch im Vorschiff, jedoch keinesfalls vor dem Kollisionsschott angeordnet werden. Die Berufsgenossenschaft kann für Fahrgastschiffe, für Spezialschiffe und für Fischereifahrzeuge mit einer Länge von weniger als 24 Metern zulassen, dass die Schlafräume unterhalb der Ladelinie angeordnet werden, wenn Vorkehrungen für ausreichende Beleuchtung und Lüftung getroffen sind und mindestens ein durch Tageslicht erhellter Aufenthaltsraum vorhanden ist. Im Falle des Satzes 3 dürfen Räume nicht unmittelbar unterhalb der für Arbeiten genutzten Gänge angeordnet sein.
(5) Die Schlafräume müssen von Verkehrsgängen aus betreten werden können, die innerhalb der Wohnbereiche liegen. Zwischen den Schlafräumen und den anderen Räumen müssen allgemeine Verkehrsgänge oder Schleusen liegen. Von Satz 2 darf abgewichen werden, um Bäder und Toiletten einzurichten, die jeweils von zwei Schlafräumen aus gemeinsam genutzt werden können.
(6) Soweit möglich, sind die Besatzungsmitglieder so auf die Schlafräume zu verteilen, dass die Wachen getrennt sind und die im Tagesdienst tätigen Besatzungsmitglieder ihren Schlafraum nicht mit Wachgängern teilen müssen.
(7) Soweit möglich, ist bei der Gestaltung von Schlafräumen die Mitnahme von Partnern der Besatzungsmitglieder zu berücksichtigen.
Nichtamtliches Inhaltsverzeichnis

§ 16 Bodenflächen

(1) In Schlafräumen mit Einzelkojen darf die Bodenfläche nicht geringer sein als
1.
4,5 Quadratmeter auf Schiffen mit einer Bruttoraumzahl von weniger als 3 000,
2.
5,5 Quadratmeter auf Schiffen mit einer Bruttoraumzahl von 3 000 oder mehr, aber mit einer Bruttoraumzahl von weniger als 10 000,
3.
7 Quadratmeter auf Schiffen mit einer Bruttoraumzahl von 10 000 oder mehr.
Abweichend von Satz 1 darf auf Fischereifahrzeugen die Bodenfläche je Besatzungsmitglied in Schlafräumen, ausschließlich der von Kojen, Spinden, Kommoden und Sitzgelegenheiten eingenommenen Fläche, nicht geringer sein als 2,5 Quadratmeter.
(2) Abweichend von Absatz 1 kann die Berufsgenossenschaft im Einzelfall für Schiffe mit einer Bruttoraumzahl von weniger als 3 000, für Fahrgastschiffe und für Spezialschiffe eine geringere Mindestgröße der Bodenflächen zulassen, um jedem Besatzungsmitglied einen eigenen Schlafraum zu ermöglichen, wenn dadurch die Gesundheit und das Wohlbefinden der Besatzungsmitglieder nicht beeinträchtigt werden.
(3) Auf Schiffen mit einer Bruttoraumzahl von weniger als 3 000, die keine Fahrgastschiffe oder Spezialschiffe sind, darf die Bodenfläche von Schlafräumen, die nach § 15 Absatz 2 Satz 2 Nummer 1 mit zwei Besatzungsmitgliedern belegt sind, nicht geringer als 7 Quadratmeter sein.
(4) Auf Fahrgastschiffen und Spezialschiffen darf die Bodenfläche in Schlafräumen für Besatzungsmitglieder, die nicht die Aufgaben von Offizieren ausführen, nicht geringer sein als
1.
7,5 Quadratmeter in Räumen mit zwei Besatzungsmitgliedern,
2.
11,5 Quadratmeter in Räumen mit drei Besatzungsmitgliedern und
3.
14,5 Quadratmeter in Räumen mit vier Besatzungsmitgliedern.
(5) Die Bodenfläche der Schlafräume von Besatzungsmitgliedern, die die Aufgaben von Offizieren ausführen und denen neben dem Schlafraum kein gesonderter Wohnraum oder anderer Raum zur Verfügung steht, darf nicht geringer sein als
1.
7,5 Quadratmeter auf Schiffen mit einer Bruttoraumzahl von weniger als 3 000,
2.
8,5 Quadratmeter auf Schiffen mit einer Bruttoraumzahl von 3 000 oder mehr, aber weniger als 10 000 und
3.
10 Quadratmeter auf Schiffen mit einer Bruttoraumzahl von 10 000 oder mehr.
Abweichend von Satz 1 darf auf Fischereifahrzeugen die Bodenfläche der Schlafräume von Besatzungsmitgliedern, die die Aufgaben von Offizieren ausführen und denen neben dem Schlafraum kein gesonderter Wohnraum oder anderer Raum zur Verfügung steht, nicht geringer sein als 6,5 Quadratmeter.
(6) Auf Fahrgastschiffen und Spezialschiffen darf die Bodenfläche der Schlafräume
1.
von Besatzungsmitgliedern, die die Aufgaben von Offizieren auf Betriebsebene ausführen, nicht geringer als 7,5 Quadratmeter sein,
2.
von Besatzungsmitgliedern, die die Aufgaben von Offizieren auf Führungsebene ausführen, nicht geringer als 8,5 Quadratmeter sein,
wenn diesen Besatzungsmitgliedern neben dem Schlafraum kein gesonderter Wohnraum oder anderer Raum zur Verfügung steht.
(7) Die von den Kojen, Spinden, Kommoden und Sitzgelegenheiten eingenommene Fläche ist in die Berechnung der Bodenfläche einzubeziehen. Auszunehmen sind jedoch kleine oder unregelmäßige Flächen, die den Bewegungsraum nicht wirksam vergrößern und die nicht als Stellraum verwendet werden können.
(8) Dem Kapitän, dem Leiter der Maschinenanlage und dem Ersten Offizier muss zusätzlich zu ihrem jeweiligen Schlafraum ein mit diesem Schlafraum unmittelbar in Verbindung stehender Wohnraum, Tagesraum oder ein gleichwertiger zusätzlicher Raum zur Verfügung stehen. Die Berufsgenossenschaft kann im Einzelfall für Schiffe mit einer Bruttoraumzahl von weniger als 3 000 Ausnahmen von Satz 1 zulassen.
Nichtamtliches Inhaltsverzeichnis

§ 17 Kojen und sonstige Schlafraumausstattungen

(1) Im Schlafraum ist jedem Besatzungsmitglied eine Einzelkoje zur Verfügung zu stellen, die seiner Körpergröße entspricht. Die Innenmaße einer Koje müssen mindestens 200 Zentimeter mal 80 Zentimeter betragen. Auf Fischereifahrzeugen müssen die Innenmaße abweichend von Satz 2 mindestens 198 Zentimeter mal 80 Zentimeter betragen.
(2) Kojen müssen so gesichert sein, dass die Besatzungsmitglieder bei Seegang nicht herausfallen können. Kojen dürfen nicht so nebeneinander aufgestellt sein, dass eine Koje überstiegen werden muss, um zur Nachbarkoje zu gelangen. Ausnahmen von Satz 2 sind zulässig, wenn ein Besatzungsmitglied von seinem Partner oder seiner Partnerin auf der Reise begleitet wird.
(3) Jede Koje ist mit einem Lattenrost, einer Matratze aus geeignetem Material, einer Decke und einem Kissen auszustatten.
(4) Übereinander dürfen nicht mehr als zwei Kojen aufgestellt sein. Wo sich über einer Koje ein Fenster befindet, dürfen Kojen der Schiffswand entlang nicht übereinander aufgestellt werden. Die untere von zwei übereinanderliegenden Kojen ist mindestens 30 Zentimeter über dem Boden und die obere ist etwa in der Mitte zwischen dem Boden der unteren Koje und der Unterseite der Decke anzubringen. Bei übereinander aufgestellten Kojen ist unter der Matratze der oberen Koje eine staubdichte Abdeckung anzubringen.
(5) Den Besatzungsmitgliedern sind 14täglich frische Bettwäsche von angemessener Qualität sowie wöchentlich mindestens zwei frische Handtücher zur Verfügung zu stellen. Bei einem Wechsel des Benutzers der Koje ist diese einschließlich der Matratze, der Decke und des Kissens gründlich zu reinigen.
(6) Jeder Schlafraum ist für jedes Besatzungsmitglied auszustatten mit
1.
einem Kleiderspind von ausreichender Größe, mindestens 475 Liter Rauminhalt, und
2.
einer Kommode oder einem entsprechenden Behältnis von mindestens 56 Liter Rauminhalt.
Ist die Kommode in den Kleiderspind integriert, so muss das gemeinsame Mindestvolumen des Kleiderspinds 500 Liter Rauminhalt betragen. Der Spind ist mit einem Fach und einer Verschlussvorrichtung zu versehen, um die Privatsphäre zu gewährleisten. Für Schiffe mit einer Bruttoraumzahl von weniger als 200 und für Fischereifahrzeuge kann die Berufsgenossenschaft im Einzelfall Ausnahmen von den Anforderungen der Sätze 1 bis 3 zulassen, wenn diese Anforderungen baulich nicht umsetzbar sind und das Besatzungsmitglied auf andere Art und Weise die Möglichkeit hat, für die Dauer der Reise seine persönlichen Gegenstände und Kleidungsstücke angemessen zu verstauen.
(7) Jeder Schlafraum ist auszustatten mit
1.
einem kleinen Schrank für den Toilettenartikelbedarf der Besatzungsmitglieder,
2.
einem fest angebrachten, aufklappbaren oder ausziehbaren Tisch oder Pult,
3.
einem Spiegel,
4.
einer Steckdose,
5.
einem Anschluss an eine Gemeinschaftsantenne,
6.
einem Bücherbrett,
7.
Kleiderhaken und
8.
den erforderlichen Sitzgelegenheiten.
Die Fenster der Schlafräume sind mit Vorhängen auszustatten.
(8) Die Einrichtungsgegenstände dürfen keine scharfen Kanten haben. Sie müssen, mit Ausnahme der gepolsterten Teile, aus einem festen, glatten und gegen Korrosion geschützten Werkstoff bestehen.
Nichtamtliches Inhaltsverzeichnis

§ 18 Küchen, Vorratsräume und Kühlräume

(1) Es sind Küchen vorzusehen, wenn die Betriebsumstände eine Zubereitung von Speisen an Bord erforderlich machen. Die Küchen müssen insbesondere ausgestattet sein mit
1.
Kochgeräten,
2.
einem Doppelspülbecken, einem Handwaschbecken und einer Einrichtung mit Einmalhandtüchern,
3.
einem Anschluss für kaltes und warmes Trinkwasser,
4.
den für die Unterbringung der beweglichen Kochgeräte und des Essgeschirrs erforderlichen Schränken, Regalen und Geschirrgestellen aus einem geeigneten, nicht rostenden Werkstoff,
5.
einer Abluftanlage und
6.
zwei Fußbodenabflüssen einschließlich einer Vorrichtung zur Verhinderung des Rückflusses.
(2) Es müssen zum Lagern der Lebensmittel Vorratsräume sowie Kühlräume vorhanden sein. Abweichend von Satz 1 können auf kleineren Schiffen, auf denen Kühlräume nur mit unangemessenem Aufwand eingerichtet werden können, anstelle der Kühlräume Kühlschränke aufgestellt werden. Die Vorratsräume müssen trocken gehalten und gut belüftet sein. In den Vorratsräumen und Kühlräumen sowie in Kühlschränken muss die für das Lagergut erforderliche Temperatur herrschen. Die Vorräte sind nach den unterschiedlichen Temperaturerfordernissen gesondert zu lagern. Kühlräume müssen von innen zu öffnen sein, auch wenn sie von außen verschlossen sind, und mit einer Alarmvorrichtung ausgestattet sein.
(3) Abweichend von Absatz 1 kann die Berufsgenossenschaft auf den folgenden Schiffen im Einzelfall anstelle einer Küche eine Kochgelegenheit zulassen, wenn die Anforderungen nach Absatz 1 baulich nicht umsetzbar sind und die Besatzungsmitglieder auf andere Art und Weise die Möglichkeit haben, für die Dauer der Reise unter Einhaltung der lebensmittelrechtlichen Vorschriften Speisen und Getränke zuzubereiten:
1.
auf Schiffen mit einer Bruttoraumzahl von bis zu 200, die keine Fischereifahrzeuge sind, und
2.
auf Fischereifahrzeugen mit einer Länge von weniger als 24 Metern.
Nichtamtliches Inhaltsverzeichnis

§ 19 Messen, Pantries und Ausstattungen

(1) Es sind Messen vorzusehen, wenn die Betriebsumstände Aufenthaltsräume erforderlich machen, in denen die Besatzungsmitglieder ihre Mahlzeiten einnehmen können. Soweit es die Größe des Schiffs zulässt, sind getrennte Messen für den Kapitän und die Offiziere einerseits sowie für die übrigen Besatzungsmitglieder andererseits einzurichten. Dabei sind die besonderen kulturellen, religiösen und sozialen Bedürfnisse der Besatzungsmitglieder zu berücksichtigen.
(2) Messen sind getrennt von den Schlafräumen und möglichst in der Nähe zur Küche anzuordnen. Messen dürfen keinesfalls vor dem Kollisionsschott angeordnet werden. Die Berufsgenossenschaft kann im Einzelfall für Schiffe mit einer Bruttoraumzahl von weniger als 3 000 Ausnahmen von Satz 1 zulassen.
(3) Die Bodenfläche einer Messe muss mindestens 1,5 Quadratmeter für jeden vorgesehenen Sitzplatz betragen. Eine Messe muss für die Anzahl von Besatzungsmitgliedern ausreichen, die sie üblicherweise gleichzeitig benutzen. Auf Fischereifahrzeugen muss die Bodenfläche einer Messe abweichend von Satz 1 eine Mindestfläche von 1,0 Quadratmeter für jeden vorgesehenen Sitzplatz betragen.
(4) Messen müssen so eingerichtet sein, dass die Besatzungsmitglieder darin ihre Mahlzeiten bequem einnehmen können. Insbesondere müssen Sitzgelegenheiten mit Rückenlehnen und Tische in einer Anzahl vorhanden sein, die der Zahl der Besatzungsmitglieder entspricht, die üblicherweise gleichzeitig die Messe benutzen. Die Oberflächen der Tische und Sitzgelegenheiten müssen aus feuchtigkeitsfesten Werkstoffen hergestellt sein.
(5) Folgende Einrichtungen müssen in einer Messe oder von einer Messe aus erreichbar vorgesehen sein:
1.
ein Doppelspülbecken mit einem Anschluss für kaltes und warmes Trinkwasser,
2.
ein Spender für Einmalhandtücher,
3.
ein Kühlschrank, der leicht zugänglich ist und dessen Fassungsvermögen für die Bedürfnisse der Besatzungsmitglieder, die die Messen besuchen, ausreicht,
4.
Einrichtungen zur Zubereitung kalter und heißer Getränke,
5.
Einrichtungen zum Aufbewahren des Geschirrs.
Diese Einrichtungen müssen jederzeit zugänglich sein. Sie sollen nach Möglichkeit in einer Pantry zusammengefasst sein.
(6) Den Besatzungsmitgliedern ist geeignetes Essgeschirr und Besteck zur Verfügung zu stellen. Teller, Gläser und andere Messeutensilien müssen aus leicht zu säuberndem Material bestehen.
Nichtamtliches Inhaltsverzeichnis

§ 20 Anzahl und Anordnung der sanitären Einrichtungen

(1) Für die Besatzungsmitglieder sind sanitäre Einrichtungen, getrennt nach Männern und Frauen vorzusehen.
(2) Ausgenommen auf Fahrgastschiffen muss jeder Schlafraum mit einem eigenen Waschbecken ausgestattet sein. Dies gilt nicht für Schlafräume mit einem eigenen Bad, in dem ein Waschbecken vorhanden ist.
(3) Steht Besatzungsmitgliedern kein eigenes Bad zur Verfügung, kann jeweils für höchstens vier männliche oder vier weibliche Besatzungsmitglieder ein Waschbecken und eine Dusche zur gemeinsamen Nutzung vorgesehen werden. Satz 1 gilt entsprechend für die gemeinsame Nutzung einer Toilette. Die Toiletten müssen in der Nähe von Schlaf- und Waschräumen angeordnet sein. Sie dürfen nur über allgemeine Verkehrsgänge oder von den Waschräumen aus zugänglich sein. Satz 3 gilt nicht für eine Toilette, die zwischen zwei Schlafräumen mit einer Gesamtbelegschaft von höchstens vier Besatzungsmitgliedern angeordnet ist.
(4) Zusätzlich zu den Toiletten nach Absatz 3 ist jeweils mindestens eine Toilette vorzusehen
1.
nahe der Brücke, dem Maschinenraum oder dem Maschinenleitstand sowie
2.
für das Bedienungs- und Verpflegungspersonal in der Nähe seiner Arbeitsplätze.
Die Berufsgenossenschaft kann im Einzelfall für Schiffe mit einer Bruttoraumzahl von weniger als 3 000 Ausnahmen von Satz 1 zulassen.
(5) Auf Schiffen mit einer Bruttoraumzahl von 5 000 oder mehr ist für jeden Offizier ein an seinen Schlafraum angrenzender Raum mit einer Dusche, einem Waschbecken und einer Toilette vorzusehen. Das Waschbecken kann auch im Schlafraum eingebaut sein.
(6) Auf Schiffen mit einer Bruttoraumzahl von 10 000 oder mehr, ausgenommen auf Fahrgastschiffen, ist für je zwei Besatzungsmitglieder, ausgenommen Offiziere, neben ihren Schlafräumen ein benachbarter Raum mit einer Dusche, einem Waschbecken und einer Toilette vorzusehen.
(7) Für Fahrgastschiffe, die normalerweise zu Reisen mit einer Fahrtdauer von höchstens vier Stunden eingesetzt werden, kann die Berufsgenossenschaft Sonderregelungen oder eine Herabsetzung der sich aus den Absätzen 1 bis 5 ergebenden Anzahl der sanitären Einrichtungen genehmigen.
Nichtamtliches Inhaltsverzeichnis

§ 21 Ausstattung und Gestaltung der sanitären Einrichtungen

(1) An allen Waschstellen muss fließendes warmes und kaltes Trinkwasser vorhanden sein.
(2) Waschbecken, Duschen und Badewannen müssen aus leicht zu reinigenden und dauerhaften Werkstoffen hergestellt sein.
(3) Räume mit sanitären Einrichtungen, mit Ausnahme der Schlafräume mit Waschbecken, haben folgenden Anforderungen zu entsprechen:
1.
die Räume müssen über eine Ablufteinrichtung ins Freie verfügen,
2.
die Fußböden müssen aus einem dauerhaften Werkstoff hergestellt und leicht zu reinigen sein, feuchtigkeitsfest sein und mit einem angemessenen Abfluss versehen sein,
3.
in Toiletten müssen vorhanden sein:
a)
ein Handwaschbecken sowie
b)
eine hygienisch einwandfreie Vorrichtung zum Händetrocknen;
jede Toilette muss mit einer starken und jederzeit verwendungsbereiten Wasserspülung oder einer anderen Spülung wie einer Luftspülung versehen und einzeln bedienbar sein; die Toilettensitze müssen aus einem nicht saugfähigen Werkstoff hergestellt und leicht zu reinigen sein; Handtücher, Seife und Toilettenpapier hat der Reeder allen Besatzungsmitgliedern zur Verfügung zu stellen,
4.
befinden sich im gleichen Raum mehrere Toiletten, so müssen sie zum Schutz der Privatsphäre der Nutzer durch Wände ausreichend voneinander abgeschirmt sein,
5.
die Abflussrohre müssen so eingerichtet sein, dass sie nicht leicht verstopfen, dass sie leicht gereinigt werden können und dass auch bei tiefen Außentemperaturen ein ungehindertes Abfließen der Abwässer sichergestellt ist; die Abflussrohre dürfen nicht entlang der Decke von Messen, Schlaf- und Vorratsräumen sowie Küchen und Pantries verlaufen; sie dürfen nicht in der Nähe von Ansaugöffnungen der Trinkwasseraufbereitungsanlage ins Freie münden.
Nichtamtliches Inhaltsverzeichnis

§ 22 Behandlungsraum

(1) Über einen von anderen Unterkunftsräumen getrennten Raum für die medizinische Behandlung von Personen an Bord (Behandlungsraum) müssen verfügen:
1.
Schiffe in der weltweiten Fahrt,
2.
Schiffe mit 15 oder mehr Personen an Bord mit einer Reisedauer von mehr als drei Tagen,
3.
Fahrgastschiffe in der weltweiten Fahrt sowie in dem in § 46 Absatz 1 des Seearbeitsgesetzes bezeichneten Gebiet (Europäische Fahrt),
4.
Fischereifahrzeuge in der Großen Hochseefischerei.
(2) Der Behandlungsraum darf nur für die Zwecke der medizinischen Betreuung der Personen an Bord verwendet werden, muss leicht zugänglich sein und dem Stand der Technik für Behandlungsräume entsprechen. Der Behandlungsraum muss mit Kommunikationseinrichtungen versehen sein, die eine direkte funk- oder satellitenfunkärztliche Beratung während der medizinischen Betreuung ermöglichen. Neben der Eingangstür ist ein Reserveschlüssel für die Eingangstür in einem verglasten Kasten aufzubewahren.
(3) Auf Schiffen in der weltweiten Fahrt und in der Europäischen Fahrt sowie auf Fischereifahrzeugen in der Großen Hochseefischerei und in der Kleinen Hochseefischerei ist ein Apothekenschrank für die Unterbringung der medizinischen Ausstattung nach Maßgabe der Anlage fest zu installieren. Soweit auf den in Satz 1 bezeichneten Schiffen nach Absatz 1 ein Behandlungsraum vorgeschrieben ist, ist der Apothekenschrank in diesem Raum aufzustellen.
(4) Wird nach § 23 Absatz 6 auf einen Krankenraum verzichtet, so muss der Behandlungsraum zur kurzzeitigen Unterbringung und Pflege einer erkrankten oder verletzten Person geeignet sein. Insbesondere muss die Untersuchungsliege dreiseitig mit mindestens 1 Meter freiem Bewegungsraum zugänglich und mit einer Sicherheitsvorrichtung gegen Herausfallen versehen sein. Eine Toilette für den ausschließlichen Gebrauch durch erkrankte oder verletzte Personen ist im Behandlungsraum oder in unmittelbarer Nähe vorzusehen.
(5) Auf Fischereifahrzeugen, die über keinen Behandlungsraum verfügen, ist einem erkrankten oder verletzten Besatzungsmitglied ein Schlafraum oder ein gleichwertiger Unterkunftsraum zur Verfügung zu stellen.
(1) Die in § 22 Absatz 1 bezeichneten Schiffe müssen zusätzlich zu dem Behandlungsraum über mindestens einen von anderen Unterkunftsräumen getrennten Raum zur Pflege erkrankter oder verletzter Personen an Bord verfügen (Krankenraum). Abweichend von Satz 1 müssen Fahrgastschiffe in der Europäischen Fahrt nur bei Reisen, die länger als zwölf Stunden dauern, einen Krankenraum haben.
(2) Als Krankenraum darf kein Innenraum verwendet werden. Der Raum muss leicht zugänglich sein und bei Bedarf sofort zur Verfügung stehen. Der Zugang muss so breit sein, dass eine erkrankte oder verletzte Person auf einer Krankentrage hineingetragen werden kann. Neben der Eingangstür ist ein Reserveschlüssel für die Eingangstür in einem verglasten Kasten aufzubewahren.
(3) Der Krankenraum muss mit einer für die erkrankte oder verletzte Person leicht erreichbaren Rufanlage oder einem Telefon mit Verbindung zur Brücke und zum Betriebsgang außerhalb des Krankenraumes ausgestattet sein.
(4) Der Krankenraum muss leicht zu reinigen und zu desinfizieren sein. Er ist mit einer Ablufteinrichtung, einer Dusche oder einer Badewanne, einem Handwaschbecken sowie einem separaten Toilettenraum mit Desinfektionsmittelwandspender auszustatten. Die Wasserarmaturen dürfen nicht selbstschließend sein. Der Toilettenraum muss unmittelbar vom Krankenraum aus zugänglich sein und über eine Rufanlage oder ein Telefon nach Absatz 3 verfügen.
(5) Der Krankenraum muss auf Schiffen mit bis zu 30 Personen mit mindestens einem Bett, auf Schiffen mit mehr als 30 Personen mit mindestens zwei Betten ausgestattet sein. Die Betten sollen in ihrer Ausstattung Krankenhausbetten entsprechen. Sie müssen mit einer Sicherheitsvorrichtung gegen Herausfallen versehen sein. Mindestens ein Bett je Raum muss dreiseitig mit mindestens 1 Meter freiem Bewegungsraum zugänglich sein.
(6) Auf einen Krankenraum kann verzichtet werden, wenn für jede Person ein eigener Schlafraum mit einer abgeteilten Sanitärzelle mit Waschbecken, Dusche oder Badewanne und Toilette sowie mit einer Rufanlage oder einem Telefon nach Absatz 3 vorhanden ist.
Nichtamtliches Inhaltsverzeichnis

§ 24 Eingriffsraum

Schiffe, die nach Maßgabe der Schiffsbesetzungsverordnung mit einem Schiffsarzt zu besetzen sind, müssen neben dem Behandlungsraum und dem Krankenraum über einen besonderen Eingriffsraum von mindestens 10 Quadratmetern Bodenfläche verfügen. Der Eingriffsraum muss bestimmungsgemäß ausgestattet sein und dem Stand der Technik entsprechen.
Auf Schiffen müssen von anderen Unterkunftsräumen getrennte Büroräume oder ein gemeinsames Schiffsbüro für den Decksdienst und den Maschinendienst vorhanden sein. Die Berufsgenossenschaft kann im Einzelfall für Schiffe mit einer Bruttoraumzahl von weniger als 3 000 Ausnahmen von Satz 1 zulassen.
Nichtamtliches Inhaltsverzeichnis

§ 26 Einrichtungen zur Wäschepflege

(1) Folgende Einrichtungen zur Wäschepflege müssen für Besatzungsmitglieder vorhanden sein, soweit die Betriebsumstände dies erfordern:
1.
Waschmaschinen,
2.
Wäschetrockner oder ein gesonderter Raum zum Trocknen von Wäsche mit angemessener Lüftung und Heizung sowie angemessenen Aufhängevorrichtungen sowie
3.
Bügeleisen und Bügelbretter oder gleichwertige Vorrichtungen.
(2) Auf Fischereifahrzeugen mit einer Länge von 45 Metern oder mehr sind die Einrichtungen für die Wäschepflege in einem gesonderten Raum mit angemessener Lüftung und Heizung vorzusehen.
Nichtamtliches Inhaltsverzeichnis

§ 27 Einrichtungen zur Aufbewahrung von Kleidung und persönlichen Gegenständen, Umkleideeinrichtungen

(1) Außerhalb der Schlafräume muss ein gut belüfteter Raum mit verschließbaren Einrichtungen für das Aufbewahren von persönlicher Schutzausrüstung vorhanden sein.
(2) Es muss ein Raum zur Aufbewahrung von Koffern und ähnlichen sperrigen Gegenständen der Besatzungsmitglieder vorhanden sein.
(3) Auf Schiffen mit einer Bruttoraumzahl von 3 000 oder mehr müssen für die Besatzungsmitglieder zusätzlich zu den Schlafräumen und den sanitären Einrichtungen leicht zugängliche Umkleideeinrichtungen vorhanden sein, die mit Einzelspinden sowie mit Waschbecken und Duschen ausgestattet sind.
Nichtamtliches Inhaltsverzeichnis

§ 28 Freizeitbereiche und Freizeiträume

(1) Für Besatzungsmitglieder sind ein oder mehrere Freizeitbereiche an Deck vorzusehen. Die Freizeitbereiche müssen so gelegen oder abgeschirmt sein, dass die erholungssuchenden Besatzungsmitglieder möglichst gegen Wind, Spritzwasser, Abgase und Abluft von Absauganlagen geschützt sind.
(2) Für Besatzungsmitglieder sind Freizeiträume sowie Möglichkeiten zur Freizeitgestaltung kostenlos zur Verfügung zu stellen. Soweit möglich, sind folgende Einrichtungen und Leistungen an Bord bereitzustellen:
1.
Raucherraum,
2.
Empfang von Fernseh- und Rundfunkprogrammen,
3.
Vorführung von Filmen; der Bestand an Filmen sollte für die Dauer der Reise ausreichend sein und regelmäßig ausgetauscht werden,
4.
Sportgeräte einschließlich Fitnessgeräten, Tischspielen und Decksspielen,
5.
Bibliothek mit berufsbildenden und anderen Büchern; der Bestand an Büchern sollte für die Dauer der Reise ausreichend sein und in angemessenen Zeitabständen ausgetauscht werden,
6.
Gelegenheit für handwerkliche Betätigung zur Entspannung während der Freizeit,
7.
elektronische Geräte, insbesondere Radio, Fernseher, Videorecorder, DVD oder CD-Spieler, Personalcomputer und Software sowie Kassettenrekorder oder -spieler,
8.
Schiffsbar oder Kiosk, soweit dies nicht mit nationalen, religiösen oder sozialen Gebräuchen im Widerspruch steht.
(3) Auf Schiffen mit einer Bruttoraumzahl von 10 000 oder mehr ist ein Schwimmbecken, eine Sauna oder ein Hobbyraum vorzusehen.
(4) Auf Schiffen, die regelmäßig in den Tropen oder in Gebieten mit ähnlichen klimatischen Verhältnissen fahren, sind für UV-Strahlen undurchlässige Sonnenschutzeinrichtungen über den Freizeitbereichen an Deck, insbesondere Sonnensegel oder Sonnendächer, vorzusehen.
(5) Messen dürfen auch als Freizeiträume genutzt werden, wenn sie entsprechend ausgestattet sind.
Nichtamtliches Inhaltsverzeichnis

§ 29 Ordnungswidrigkeiten

Ordnungswidrig im Sinne des § 145 Absatz 1 Nummer 18 des Seearbeitsgesetzes handelt, wer vorsätzlich oder fahrlässig
1.
entgegen § 5 Absatz 1 Satz 1 eine Zustimmung nicht, nicht richtig oder nicht rechtzeitig einholt oder
2.
entgegen § 5 Absatz 2 bei der Bauausführung von den Plänen abweicht.
Nichtamtliches Inhaltsverzeichnis

§ 30 Übergangsvorschriften

(1) Abweichend von § 1 sind auf Schiffe, die vor dem 1. August 2013 auf Kiel gelegt worden sind, die folgenden Rechtsvorschriften anzuwenden:
1.
§ 3 mit der Maßgabe, dass an die Stelle des Standes der Technik die allgemein anerkannten Regeln der Technik treten, sowie §§ 5, 17 Absatz 4 und § 28 Absatz 2,
2.
die zum jeweiligen Zeitpunkt der Kiellegung geltenden Rechtsvorschriften zu Unterkünften, Freizeiteinrichtungen und medizinischen Räumlichkeiten.
(2) Auf Schiffen, die zwischen dem 1. August 2013 und dem 1. November 2019 auf Kiel gelegt worden und keine Fischereifahrzeuge mit einer Länge von weniger als 24 Metern sind, sind die Regelungen der Seeunterkunftsverordnung vom 25. Juli 2013 (BAnz AT 30.07.2013 V1) anzuwenden.
(3) Ein Schiff, das von einer ausländischen Flagge zur Bundesflagge wechselt, muss,
1.
wenn es vor dem 1. August 2013 auf Kiel gelegt worden ist und kein Fischereifahrzeug ist, den folgenden Anforderungen entsprechen:
a)
den Anforderungen des Übereinkommens Nummer 92 der Internationalen Arbeitsorganisation über die Quartierräume der Besatzung an Bord von Schiffen (Neufassung vom Jahre 1949) vom 18. Juni 1949 (BGBl. 1974 II S. 841, 842),
b)
den Anforderungen des Übereinkommens Nummer 133 der Internationalen Arbeitsorganisation über die Quartierräume der Besatzung an Bord von Schiffen (zusätzliche Bestimmungen) vom 30. Oktober 1970 (BGBl. 1974 II S. 862, 863) und
c)
den Anforderungen der §§ 22 bis 24,
2.
wenn es vor dem 1. August 2013 auf Kiel gelegt worden ist und ein Fischereifahrzeug ist, den folgenden Anforderungen entsprechen:
a)
den Anforderungen des Übereinkommens Nummer 126 der Internationalen Arbeitsorganisation über die Quartierräume auf Fischereifahrzeugen vom 21. Juni 1966 (BGBl. 1974 II S. 881, 882) und
b)
den Anforderungen der §§ 22 bis 24,
3.
wenn es nach dem 31. Juli 2013 auf Kiel gelegt wird, den Anforderungen dieser Verordnung entsprechen.
Nichtamtliches Inhaltsverzeichnis

§ 31 Inkrafttreten, Außerkrafttreten

Diese Verordnung tritt am 1. November 2019 in Kraft. Gleichzeitig tritt die See-Unterkunftsverordnung vom 25. Juli 2013 (BAnz AT 30.07.2013 V1) außer Kraft.
Nichtamtliches Inhaltsverzeichnis

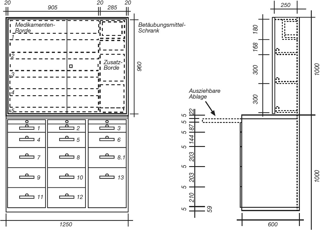
Anlage 1 (zu § 22 Absatz 3)
Apothekenschrank für die Aufbewahrung der medizinischen Ausstattung an Bord

(Fundstelle: BGBl. I 2019, 1463)
 
Erläuterungen:
Aufbau des Apothekenschrankes
Der Schrank muss aus einem Oberteil und einem Unterteil von jeweils 1 000 mm Höhe bestehen. Differenzen zur jeweils vorhandenen Deckenhöhe sind durch Füllstücke auszugleichen.
Das Oberteil muss 250 mm tief sein und fünf Medikamentenborde enthalten. Es muss durch zwei Türen, Falttüren oder Rolltüren abschließbar sein. Die Medikamentenborde sollen den in Landapotheken-Einrichtungen bewährten, in der Aufteilung variablen Medikamenten-Borden entsprechen.
Das Unterteil muss 600 mm tief sein. Es muss 14 Schubfächer enthalten, die einzeln abschließbar sind, ansonsten muss eine verschließbare Tür wie im Oberteil vorhanden sein.
Das Unterteil muss eine ausziehbare Arbeitsplatte enthalten, auf der gegebenenfalls die Aufstellung über die geordnete Unterbringung der Ausstattung in den Schubfächern angebracht ist. Hier ist ebenfalls eine Information über die Erreichbarkeit des Funkärztlichen Beratungsdienstes Cuxhaven anzubringen (Telefon/Telefax/E-Mail). Diese Informationen können alternativ auch auf der Innenseite der Schranktüren angebracht sein.