Logo Bundesministerium der Justiz und für VerbraucherschutzLogo Bundesamt für Justiz
Nichtamtliches Inhaltsverzeichnis

Eisenbahn-Bau- und Betriebsordnung (EBO)
Anlage 8 (zu § 22)

(Fundstelle: BGBl. I 1991, Nr. 30 Anlageband S. 24 - 25)


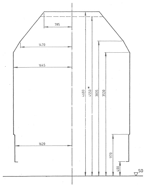
Maße in Millimetern


Bezugslinie G 2

für Fahrzeuge, die nicht im grenzüberschreitenden Verkehr
eingesetzt werden

Bild 1




* Zulässige Höhe für Fahrzeugteile, aus denen Dampf ausströmen kann Unterer Teil der Bezugslinie
Siehe Bilder 2 und 3


Bild 2

Bezugslinie für die unteren Teile der Fahrzeuge




Bild 3


Bezugslinie für die unteren Teile der Fahrzeuge, die nicht über Gleise fahren dürfen, deren Einrichtungen nach der Grenzlinie für feste Anlagen gemäß Anlage 1 Bild 2 Buchstabe b bemessen sind (Ablaufberge, Rangiereinrichtungen).