Logo Bundesministerium der Justiz und für VerbraucherschutzLogo Bundesamt für Justiz
Nichtamtliches Inhaltsverzeichnis

Nationale Muster (Anhang V der Binnenschiffsuntersuchungsordnung BGBl I 2018, 1398)
Muster 5 Muster des Abnahmeprotokolls für die Prüfung der Seil- und Kettenanlagen von seil- und kettengebundenen Fähren

(Fundstelle: BGBl. 2025 I Nr. 242, S. 37 – 41)
Die Abbildung zeigt das Muster für ein Abnahmeprotokoll zur Prüfung von seil- und kettengebundenen Fähren. Abgebildet ist Seite 1.
Die Abbildung zeigt das Muster für ein Abnahmeprotokoll zur Prüfung von seil- und kettengebundenen Fähren. Abgebildet ist Seite 2.
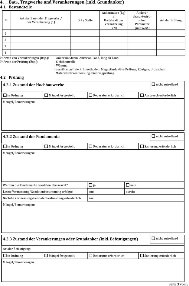
Die Abbildung zeigt das Muster für ein Abnahmeprotokoll zur Prüfung von seil- und kettengebundenen Fähren. Abgebildet ist Seite 3.
Die Abbildung zeigt das Muster für ein Abnahmeprotokoll zur Prüfung von seil- und kettengebundenen Fähren. Abgebildet ist Seite 4.
Die Abbildung zeigt das Muster für ein Abnahmeprotokoll zur Prüfung von seil- und kettengebundenen Fähren. Abgebildet ist Seite 5. Abgebildet ist ein Auszug aus Anhang II der Binnenschiffsuntersuchungsordnung. Abgebildet sind § 3.01 Nr. 7 sowie die §§ 3.04 bis 3.07.